DŘEVOSTAVBY BLAŽEK

Rodinné domy patrové a přízemní
rekreační chaty, zahradní chaty

RODINNÉ DOMY PATROVÉ

Tyto domky se může upravit zvětšením
nebo zmenšením, dle Vašeho přání.

REKREAČNÍ CHATY

Slouží k sezónnímu obývaní
od jara do začátku zimy.

REKREAČNÍ CHATY

Za poplatek je možno dřevostavbu
zateplit i k celoročnímu obývání.

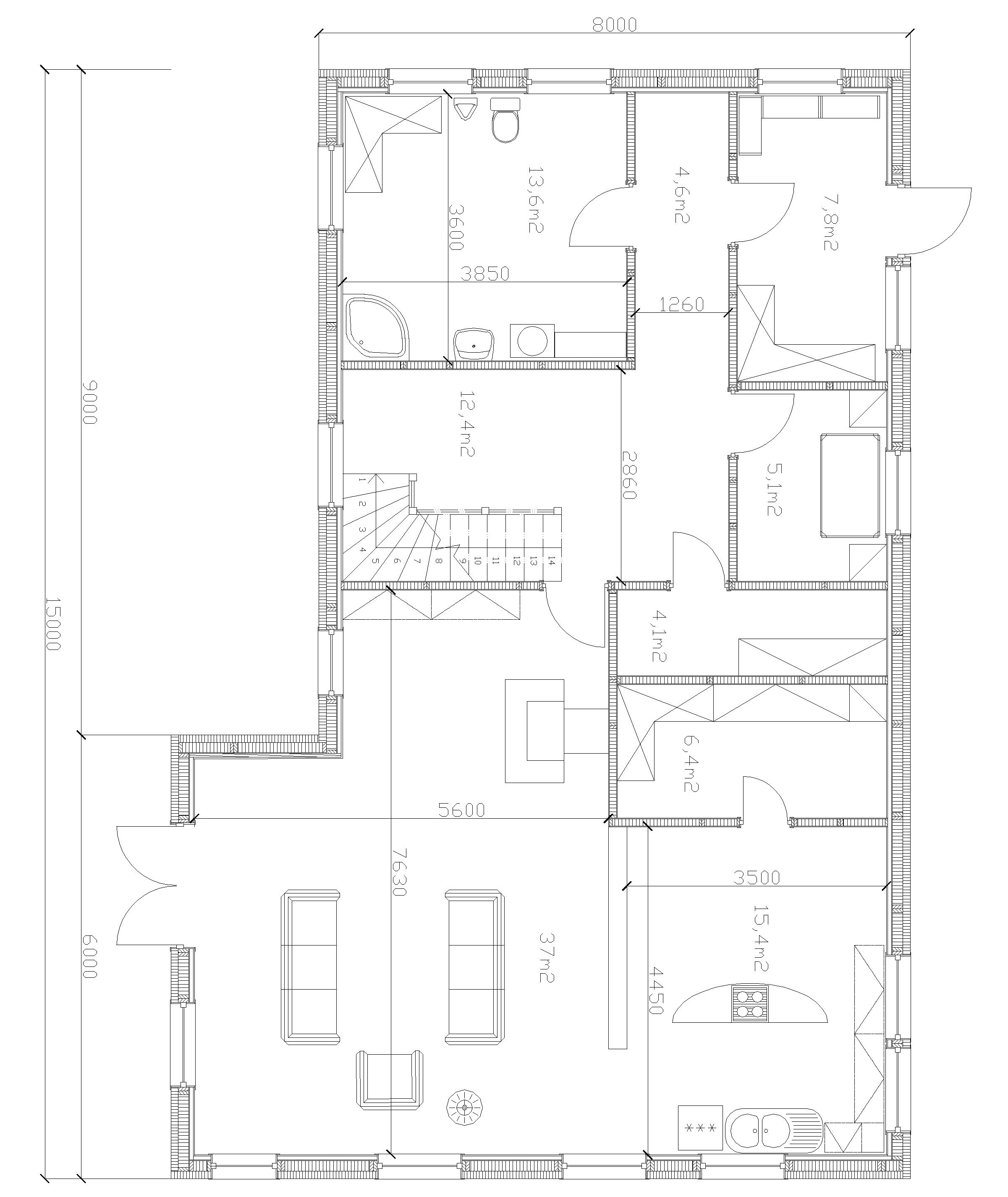
Rodinný dům B17

Rodinný patrový dům B17 je navržen jako nízkoenergetická stavba , která je difúzně uzavřená (s parofolií a použitím dřevovláknitých desek jako izolačního materiálu). Tato dřevostavba je učena převážně pro rodiny s dětmi a pro ty, kteří potřebují větší prostor k životu. Do stavby je možno zakomponovat celou řadu prvků dle přání zákazníka jako jsou zimní zahrady, garážová stání, terasy, balkóny, …

U našich dřevostaveb lze také různě měnit jejich rozměr. To Vám dává možnost vytvoření domu dle svých představ.

Zastavěná plocha: 132 m2

 

půdorys 2půdorys 3půdorys 1

 

Pohledy a půdorysy ke stažení:

Pohledy B17 | Půdorys B17 | Půdorys B17 1NP

 

Konstrukce

Rodinný dům B 17 je realizován jako montovaný rodinný dům v nízkoenergetickém standardu na bázi malorozměrových částečně dokončených panelů se sedlovou konstrukcí střechy.

Venkovní fasáda je ukončena silikonovou omítkou nebo fasádními palubkami. Vnitřní stěny jsou ukončeny palubkami nebo fermacellem. Izolačním materiálem u tohoto typu domu je Rockwool a při ukončení omítkou ještě fasádní polystyren.

Domy realizujeme obvykle jako hrubou stavbu, to znamená bez vnitřních instalací, nátěrů a klempířských prací. Ale po dohodě je možno vytvoření stavby na klíč. Dům je možno realizovat také v jiné energetické variantě.

Montáž dřevostavby trvá 5 – 6 týdnů .

Skladba stěny:
- fasádní silikonová omítka
- tvrzená minerální vata rockwool 50 mm
- OSB 3 - 18mm
- nosný rám 200mm s vloženou tepelnou izolací rockwool 200mm
- dřevěný rošt s vloženou min. izolaci rockwool 50mm
- aluminiová parotěsná zábrana
- vzduchová mezera 20mm

- sádrovláknitá deska Fermacell 12.5mm

Skladba podlahy přízemí:
- dřevěný rošt 100mm s vloženou tepelnou izolací rockwool 100mm
- miralon

- podlahová konstrukční deska Durelis 22 mm

Skladba podlahy patro:
- podhled z palubek 19mm popřípadě fermacell 12,5mm
- laťování 20mm
- stropní trám 80 x 200mm (osově rozmístěn po 416mm)
- OSB 3 - 22mm
- akustická izolace steprock HD 60mm
- OSB 3 na pero a drážku – 15 mm
- miralon

- OSB 3 na pero a drážku – 15 mm

Skladba šikmé střešní konstrukce:
- asfaltová kanadská šindel nebo střešní taška
- OSB 3 18mm
- kontralatě
- latě
- kontaktní folie
- krokev 200 mm s vloženou izolací rockwool 200mm
- vodorovné přerušované latě 50mm s vloženou izolací rockwool 50mm
- dřevěný rošt s vloženou min. izolaci rockwool 50mm
- aluminiová parotěsná zábrana
- vzduchová mezera 20mm

- sádrovláknitá deska Fermacell 12.5mm

Skladba vodorovné střešní konstrukce varianta 1:
- podhled z palubek 19mm popřípadě fermacell 12,5mm
- laťování 20mm
- aluminiová parotěsná zábrana

- tepelná izolace rockwool 300mm

Skladba vodorovné střešní konstrukce varianta 2:
- přiznané obložené kleštiny 170x150mm
- podhled z palubek 19mm popřípadě fermacell 12,5mm
- aluminiová parotěsná zábrana
- tepelná izolace rockwool 300mm

 

Pořizovací náklady - cena pro rok 2022

 

Cena hrubé stavby: 3.598 175,- Kč bez 15% DPH (výše DPH se může změnit dle platné legislativy).

Cena stavby na klíč se vypočítává individuálně v závislosti na požadavcích investora na vybavenost dřevostavby.

Cena zahrnuje : montáž, střešní krytinu - asfaltovou šindel nebo tašku (barva dle výběru zákazníka), podlahy v přízemí zakončené OSB deskami, dřevné podlahy v podkroví, euro-okna, vnitřní i venkovní dveře, schody, zábradlí, ukončení vnitřních stěn a stropu palubkami nebo fermacellem, ukončení vnějších stěn silikonovou omítkou nebo fasádními palubkami o síle 19 mm, zateplení.

Cena nezahrnuje: základovou desku, instalace a vybavení.

Cena za dopravu: 170 Kč/km bez DPH.

 

Energetické varianty

VARIANTA 1 (nízkoenergetická varianta)

obvodová stěna tl. 400 mm
výsledky tepelně technického výpočtu

požadavky ČSN 730540

normová hodnota

vypočtená hodnota

posouzení

součinitel prostupu tepla U (W/m2K)

0,30

0,14

vyhovuje

povrchová teplota teplotní faktor fRSi

0,749

0,965

vyhovuje

kondenzace vodní páry v návrhových podmínkách M (kg/m2,rok)

Mc,a

Mev,a

vyhovuje

0,0186

0,6619

bilance vlhkosti během modelového

roku dle ČSN EN ISO 13788 (kg/m2)

Ma,vysl

nekondenzuje

vyhovuje

součinitel prostupu tepla U (W/m2K) doporučená hodnota : 0,20
součinitel prostupu tepla U (W/m2K) doporučená pro pasivní standart : 0,12 – 0,18

dřevostavba B17 dřevostavba B17 dřevostavba B17 dřevostavba B17 dřevostavba B17

Dřevostavby patrové B 15, dřevostavby patrové B 17, dřevostavby přízemní B 16, rekreační chaty, zahradní chaty.
Na Výsluní 2252, Roudnice nad Labem 41 301, mobil: (+420) 728129863, email: chaty@drevostavby-blazek.cz

CzechProject spol. s r.o.