DŘEVOSTAVBY BLAŽEK

Rodinné domy patrové a přízemní
rekreační chaty, zahradní chaty

RODINNÉ DOMY PATROVÉ

Tyto domky se může upravit zvětšením
nebo zmenšením, dle Vašeho přání.

REKREAČNÍ CHATY

Slouží k sezónnímu obývaní
od jara do začátku zimy.

REKREAČNÍ CHATY

Za poplatek je možno dřevostavbu
zateplit i k celoročnímu obývání.

Rodinný dům patrový B17.3


Cena pro rok 2022

1.449 325,- Kč bez 15% DPH

Výše DPH se může změnit dle platné legislativy.

Zastavěná plocha:50,6 m2
Síla stěn: 40 cm
Stěna v podkroví je zvýšená na 90cm.

Doprava: 170 Kč/km bez DPH

Tento domek se může libovolně upravit zvětšením nebo zmenšením, dle přání zákazníka.

V ceně je zahrnuto euro-okna + euro-dveře nebo plastové, vnitřní dveře, střešní krytina (asfaltová šindel nebo taška) , sedlová střecha, ukončení venkovní stěny fasádní silikonovou omítkou nebo fasádními palubkami o síle 19mm, ukončení vnitřních stěn, příček a stropu palubkami nebo fermacellem (konstrukční sádro-vláknitá deska, která unese pří tl. 12 mm 60kg na jedné hmoždince), schodiště, podlahy, zateplení, montáž.

Stěna:

- Fasádní silikonová omítka

- Tvrzená minerální vata rockwool 50 mm

- OSB 3 - 18mm

- Nosný rám 200mm s vloženou tepelnou izolací rockwool 200mm

- Dřevěný rošt s vloženou min. izolaci rockwool 50mm

- Aluminiová parotěsná zábrana

- Vzduchová mezera 20mm

- Sádrovláknitá deska Fermacell 12.5mm

Skladba podlahy přízemí:

- Dřevěný rošt 100mm s vloženou tepelnou izolací rockwool 100mm

- Miralon

- Podlahová konstrukční deska Durelis 22 mm

Skladba podlahy patro:

- Podhled z palubek 19mm popřípadě fermacell 12,5mm

- Laťování 20mm

- Stropní trám 80 x 200mm (osově rozmístěn po 416mm)

- OSB 3 - 22mm

- Akustická izolace steprock HD 60mm

- OSB 3 na pero a drážku – 15 mm

- Miralon

- OSB 3 na pero a drážku – 15 mm

Skladba šikmé střešní konstrukce:

- Asfaltová kanadská šindel nebo střešní taška

- OSB 3 18mm

- Kontralatě

- Latě

- Kontaktní folie

- Krokev 200 mm s vloženou izolací rockwool 200mm

- Vodorovné přerušované latě 50mm s vloženou izolací rockwool 50mm

- Dřevěný rošt s vloženou min. izolaci rockwool 50mm

- Aluminiová parotěsná zábrana

- Vzduchová mezera 20mm

- Sádrovláknitá deska Fermacell 12.5mm

 

Skladba vodorovné střešní konstrukce varianta 1:

- Podhled z palubek 19mm popřípadě fermacell 12,5mm

- Laťování 20mm

- Aluminiová parotěsná zábrana

- Tepelná izolace rockwool 300mm

 

Skladba vodorovné střešní konstrukce varianta 2:

- Přiznané obložené kleštiny 170x150mm

- Podhled z palubek 19mm popřípadě fermacell 12,5mm

- Aluminiová parotěsná zábrana

- Tepelná izolace rockwool 300mm

 

V ceně není zahrnuta základová deska, instalace, rozvody (vody, elektřiny a topení), zařizovací předměty, podlahové vytápění, projektová dokumentace od projekční kanceláře Baude, doprava.

obvodová stěna tl. 400 mm

výsledky tepelně technického výpočtu

požadavky ČSN 730540

normová hodnota

vypočtená hodnota

posouzení

součinitel prostupu tepla U (W/m2K)

0,30

0,14

vyhovuje

povrchová teplota teplotní faktor fRSi

0,749

0,965

vyhovuje

kondenzace vodní páry v návrhových podmínkách M (kg/m2,rok)

Mc,a

Mev,a

vyhovuje

0,0186

0,6619

bilance vlhkosti během modelového

roku dle ČSN EN ISO 13788 (kg/m2)

Ma,vysl

nekondenzuje

vyhovuje

součinitel prostupu tepla U (W/m2K) doporučená hodnota : 0,20

součinitel prostupu tepla U (W/m2K) doporučená pro pasivní standart : 0,12 – 0,18

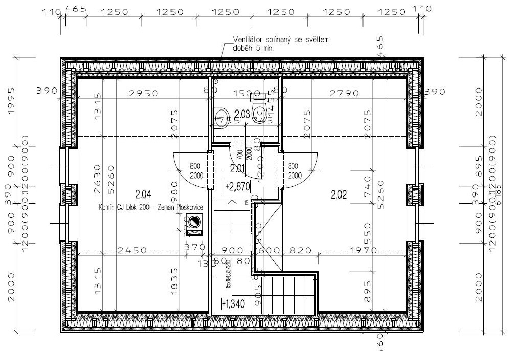
půdorys 2půdorys 2


dřevostavba-B17.3 dřevostavba-B17.3 dřevostavba-B17.3 dřevostavba-B17.3 dřevostavba-B17.3 dřevostavba-B17.3 dřevostavba-B17.3 dřevostavba-B17.3 dřevostavba-B17.3 dřevostavba-B17.3 dřevostavba-B17.3 dřevostavba-B17.3 dřevostavba-B17.3

Dřevostavby patrové B 15, dřevostavby patrové B 17, dřevostavby přízemní B 16, rekreační chaty, zahradní chaty.
Na Výsluní 2252, Roudnice nad Labem 41 301, mobil: (+420) 728129863, email: chaty@drevostavby-blazek.cz

CzechProject spol. s r.o.