DŘEVOSTAVBY BLAŽEK

Rodinné domy patrové a přízemní
rekreační chaty, zahradní chaty

RODINNÉ DOMY PATROVÉ

Tyto domky se může upravit zvětšením
nebo zmenšením, dle Vašeho přání.

REKREAČNÍ CHATY

Slouží k sezónnímu obývaní
od jara do začátku zimy.

REKREAČNÍ CHATY

Za poplatek je možno dřevostavbu
zateplit i k celoročnímu obývání.

Rodinný dům B15

Dřevostavba rodinného domu B15 je pro ty, které oslovuje krása jednoduchých tvarů a dávají přednost praktickému řešení stavby před krkolomnými tvary. Jeho architektonické řešení umožňuje do stavby zakomponovat různé prvky jako jsou zimní zahrady (i s prosklenými vstupy), různé přístavky, terasy, balkony, střešní okna, atd.

U našich rodinných domů lze také různě měnit jejich rozměr. To dává zákazníkovi možnost vytvoření domu prakticky dle svých představ.

Zastavěná plocha: 73m2
Síla stěny: 30 cm

 

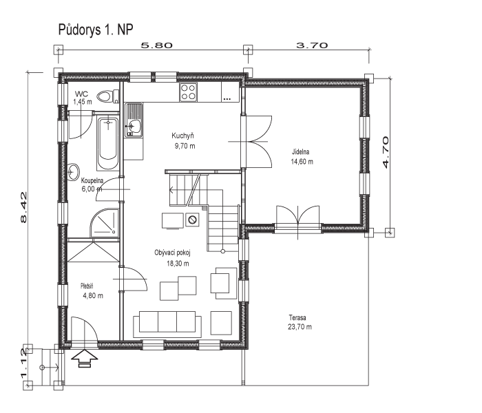
půdorys 1 půdorys 2

 

Konstrukce

Rodinný dům B15 je realizován jako montovaný rodinný dům s nízkou spotřebou energie na bázi malorozměrových částečně dokončených panelů s vazníkovou konstrukcí střechy.

Síla stěny u této dřevostavby je 30 cm. Venkovní fasáda je ukončena silikonovou omítkou nebo fasádními palubkami. V nitřní stěny jsou ukončeny palubkami nebo fermacellem. Izolačním materiálem u tohoto typu domu je Rockwool a při ukončení omítkou ještě fasádní polystyren.

Domy realizujeme především jako hrubou stavbu, ale po dohodě je možno vytvoření stavby na klíč. Dům je možno realizovat také v nízkoenergetickém standardu.

Montáž dřevostavby tohoto typu trvá podle velikosti 3 - 4 týdny. Dům se může upravit zvětšením nebo zmenšením dle Vašeho přání.

 

Pořizovací náklady - cena pro rok 2022

 

Cena hrubé stavby: 1.874 730,- Kč bez 15% DPH (výše DPH se může změnit dle platné legislativy).

Cena stavby na klíč se vypočítává individuálně v závislosti na požadavcích investora na vybavenost dřevostavby.

Cena zahrnuje : montáž, střešní krytinu (barva dle výběru zákazníka), podlahy, okna, vnitřní i venkovní dveře, ukončení vnitřních a vnějších stěn palubkami, fermacellem nebo omítkou a zateplení.

Cena nezahrnuje: základovou desku, instalace a vybavení.

Cena za dopravu: 150 Kč/km bez DPH.

 

Energetické varianty

VARIANTA 1 (energeticky úsporná varianta)

obvodová stěna tl. 280,5 mm
výsledky tepelně technického výpočtu

požadavky ČSN 730540

normová hodnota

vypočtená hodnota

posouzení

součinitel prostupu tepla U (W/m2K)

0,30

0,20

vyhovuje

povrchová teplota teplotní faktor fRSi

0,749

0,951

vyhovuje

kondenzace vodní páry v návrhových podmínkách M (kg/m2,rok)

Mc,a

Mev,a

vyhovuje

0,0167

0,6741

bilance vlhkosti během modelového

roku dle ČSN EN ISO 13788 (kg/m2)

Ma,vysl

nekondenzuje

vyhovuje

součinitel prostupu tepla U (W/m2K) doporučená hodnota : 0,20
součinitel prostupu tepla U (W/m2K) doporučená pro pasivní standart : 0,12 – 0,18

 

VARIANTA 2 (nízkoenergetická varianta)

obvodová stěna tl. 335,5 mm
výsledky tepelně technického výpočtu

požadavky ČSN 730540

normová hodnota

vypočtená hodnota

posouzení

součinitel prostupu tepla U (W/m2K)

0,30

0,17

vyhovuje

povrchová teplota teplotní faktor fRSi

0,749

0,960

vyhovuje

kondenzace vodní páry v návrhových podmínkách M (kg/m2,rok)

Mc,a

Mev,a

vyhovuje

0,0179

0,6665

bilance vlhkosti během modelového

roku dle ČSN EN ISO 13788 (kg/m2)

Ma,vysl

nekondenzuje

vyhovuje

součinitel prostupu tepla U (W/m2K) doporučená hodnota : 0,20
součinitel prostupu tepla U (W/m2K) doporučená pro pasivní standart : 0,12 – 0,18

 

VARIANTA 3 (pasivní varianta)

obvodová stěna tl. 375,5 mm
výsledky tepelně technického výpočtu

požadavky ČSN 730540

normová hodnota

vypočtená hodnota

posouzení

součinitel prostupu tepla U (W/m2K)

0,30

0,15

vyhovuje

povrchová teplota teplotní faktor fRSi

0,749

0,964

vyhovuje

kondenzace vodní páry v návrhových podmínkách M (kg/m2,rok)

Mc,a

Mev,a

vyhovuje

0,0184

0,6629

bilance vlhkosti během modelového

roku dle ČSN EN ISO 13788 (kg/m2)

Ma,vysl

nekondenzuje

vyhovuje

součinitel prostupu tepla U (W/m2K) doporučená hodnota : 0,20
součinitel prostupu tepla U (W/m2K) doporučená pro pasivní standart : 0,12 – 0,18

patrový dům B 15 patrový dům B 15 patrový dům B 15 patrový dům B 15 patrový dům B 15 patrový dům B 15 patrový dům B 15 patrový dům B 15 patrový dům B 15 patrový dům B 15

Dřevostavby patrové B 15, dřevostavby patrové B 17, dřevostavby přízemní B 16, rekreační chaty, zahradní chaty.
Na Výsluní 2252, Roudnice nad Labem 41 301, mobil: (+420) 728129863, email: chaty@drevostavby-blazek.cz

CzechProject spol. s r.o.