DŘEVOSTAVBY BLAŽEK

Rodinné domy patrové a přízemní
rekreační chaty, zahradní chaty

RODINNÉ DOMY PATROVÉ

Tyto domky se může upravit zvětšením
nebo zmenšením, dle Vašeho přání.

REKREAČNÍ CHATY

Slouží k sezónnímu obývaní
od jara do začátku zimy.

REKREAČNÍ CHATY

Za poplatek je možno dřevostavbu
zateplit i k celoročnímu obývání.

Rodinný dům B15.2

Dřevostavba rodinného domu B15.2 se vyznačuje jednoduchými tvary a praktičností řešení stavby. Architektonické řešení umožňuje do stavby zakomponovat různé prvky jako jsou zimní zahrady (i s prosklenými vstupy), různé přístavky, terasy, balkony, střešní okna, atd.

U našich rodinných domů lze také různě měnit jejich rozměr. To dává zákazníkovi možnost vytvoření domu prakticky dle svých představ.

Vnitřní uspořádání může být upraveno dle přání investora.
Tento domek se řadí to třídy energeticky úsporné.

 

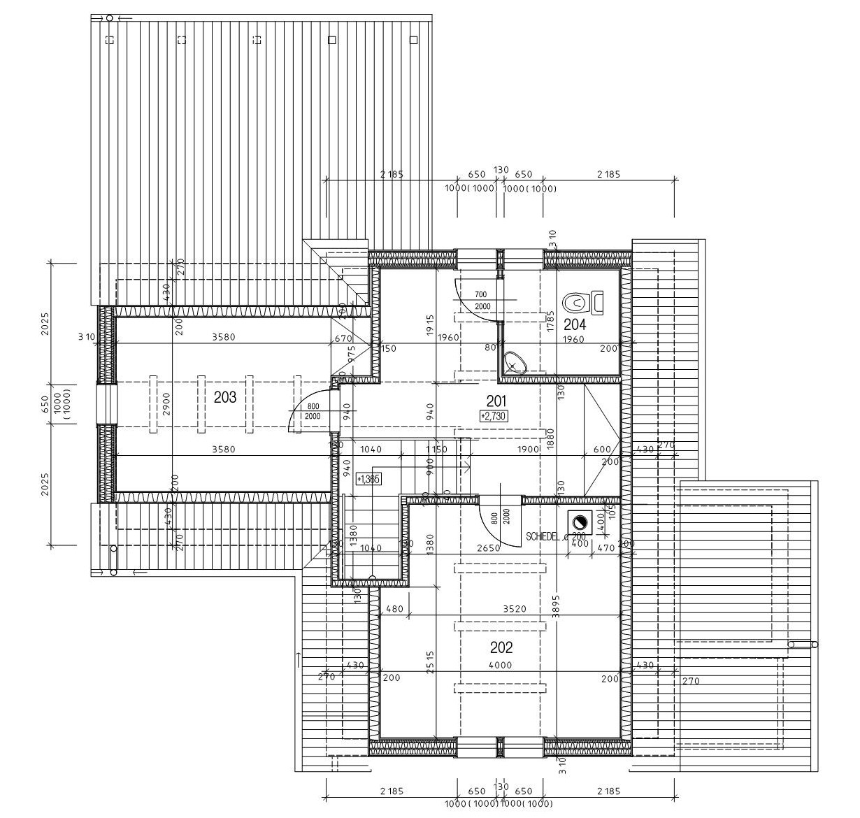
půdorys 2půdorys 2

 

Konstrukce

Rodinný dům B15.2 je realizován jako montovaný rodinný dům na bázi malorozměrových částečně dokončených panelů s vazníkovou konstrukcí střechy.

Venkovní fasáda je ukončena silikonovou omítkou nebo fasádními palubkami. Vnitřní stěny jsou ukončeny palubkami nebo fermacellem. Izolačním materiálem u tohoto typu domu je Rockwool a při ukončení omítkou ještě fasádní polystyren.

Domy realizujeme obvykle jako hrubou stavbu, to znamená bez vnitřních instalací, nátěrů a klempířských prací. Ale po dohodě je možno vytvoření stavby na klíč. Dům je možno realizovat také v jiné energetické variantě.

Montáž dřevostavby tohoto typu trvá 4 týdny. Dům se může upravit zvětšením nebo zmenšením dle Vašeho přání.

 

Pořizovací náklady - cena pro rok 2021

Při výstavbě v období od 1. prosince do 31. března poskytujeme slevu 5%.


Cena hrubé stavby: 1.561 010,- Kč bez 15% DPH (výše DPH se může změnit dle platné legislativy).

Cena stavby na klíč se vypočítává individuálně v závislosti na požadavcích investora na vybavenost dřevostavby.

Cena zahrnuje : montáž, střešní krytinu (barva dle výběru zákazníka), podlahy, okna, vnitřní i venkovní dveře, ukončení vnitřních a vnějších stěn palubkami, fermacellem nebo omítkou a zateplení.

Cena nezahrnuje: základovou desku, instalace a vybavení.

Cena za dopravu: 121 Kč/km bez DPH.

 

Energetické varianty

VARIANTA 1 (energeticky úsporáná varianta)

obvodová stěna tl. 280,5 mm
výsledky tepelně technického výpočtu

požadavky ČSN 730540

normová hodnota

vypočtená hodnota

posouzení

součinitel prostupu tepla U (W/m2K)

0,30

0,20

vyhovuje

povrchová teplota teplotní faktor fRSi

0,749

0,951

vyhovuje

kondenzace vodní páry v návrhových podmínkách M (kg/m2,rok)

Mc,a

Mev,a

vyhovuje

0,0167

0,6741

bilance vlhkosti během modelového

roku dle ČSN EN ISO 13788 (kg/m2)

Ma,vysl

nekondenzuje

vyhovuje

součinitel prostupu tepla U (W/m2K) doporučená hodnota : 0,20
součinitel prostupu tepla U (W/m2K) doporučená pro pasivní standart : 0,12 – 0,18

 

VARIANTA 2 (nizkoenergetická varianta)

obvodová stěna tl. 335,5 mm
výsledky tepelně technického výpočtu

požadavky ČSN 730540

normová hodnota

vypočtená hodnota

posouzení

součinitel prostupu tepla U (W/m2K)

0,30

0,17

vyhovuje

povrchová teplota teplotní faktor fRSi

0,749

0,960

vyhovuje

kondenzace vodní páry v návrhových podmínkách M (kg/m2,rok)

Mc,a

Mev,a

vyhovuje

0,0179

0,6665

bilance vlhkosti během modelového

roku dle ČSN EN ISO 13788 (kg/m2)

Ma,vysl

nekondenzuje

vyhovuje

součinitel prostupu tepla U (W/m2K) doporučená hodnota : 0,20
součinitel prostupu tepla U (W/m2K) doporučená pro pasivní standart : 0,12 – 0,18

 

VARIANTA 3 (pasivní varianta)

obvodová stěna tl. 375,5 mm
výsledky tepelně technického výpočtu

požadavky ČSN 730540

normová hodnota

vypočtená hodnota

posouzení

součinitel prostupu tepla U (W/m2K)

0,30

0,15

vyhovuje

povrchová teplota teplotní faktor fRSi

0,749

0,964

vyhovuje

kondenzace vodní páry v návrhových podmínkách M (kg/m2,rok)

Mc,a

Mev,a

vyhovuje

0,0184

0,6629

bilance vlhkosti během modelového

roku dle ČSN EN ISO 13788 (kg/m2)

Ma,vysl

nekondenzuje

vyhovuje

součinitel prostupu tepla U (W/m2K) doporučená hodnota : 0,20
součinitel prostupu tepla U (W/m2K) doporučená pro pasivní standart : 0,12 – 0,18

Dřevostavba rodinného domu B-15.2 Dřevostavba rodinného domu B-15.2

Dřevostavby patrové B 15, dřevostavby patrové B 17, dřevostavby přízemní B 16, rekreační chaty, zahradní chaty.
Na Výsluní 2252, Roudnice nad Labem 41 301, mobil: (+420) 728129863, email: chaty@drevostavby-blazek.cz

CzechProject spol. s r.o.